2025 végén a Magyar Nemzeti Vagyonkezelő Zrt. árverésre bocsátotta a Béla király úti egykori kormányvendégházat. A 28,36 milliárd forintos kikiáltási ár egy több mint hetvenöt éven át zárt, őrzött, állami hatalmi tér történetét zárja le – vagy inkább most teszi először láthatóvá. Ami eddig a falakon belül maradt, az az árveréssel nyilvánossá vált.
A Béla király úti „vendégház” nem vendégház. Soha nem is volt az. A szó ebben az esetben fedőnév: kényelmes, ártatlan, megtévesztő, félrevezető. A budai domboldalba épített komplexum évtizedeken át a magyar államhatalom egyik legzártabb, legérzékenyebb működési tere volt. Nem szálloda: nincsenek benne turisták, nincsen recepció, nincs nyilvános bejárat, nincsenek véletlen vendégek. A mozgás, az érkezés, a tartózkodás és a távozás itt mindig protokoll szerint, védetten történt. Nem a kényelmet, hanem az ellenőrzést szolgálta. Nem is rezidencia. Nem magánéletre tervezték, hanem döntésekre. Nem otthon volt, hanem munkaeszköz: tárgyalásokhoz, megállapodásokhoz, háttéralkukhoz, diplomáciai játszmákhoz.
A „vendégház” valójában politikai infrastruktúra volt. Egy térbe épített állami rendszer, ahol a hatalom működött – láthatatlanul, mégis rendkívüli következetességgel. A történet az ötvenes évek elején, 1949-1950-ben [01] kezdődik néhány budai villával, amelyeket eredetileg a pártvezetés saját életformájára alakított ki. Később, amikor a külpolitika, a blokkpolitika és a nemzetközi diplomácia egyre bonyolultabbá vált, ezek a terek fokozatosan állami gépezetté alakultak.
A rendszer nőtt. Új épületek, új funkciók, új pénzek, új titkok rakódtak egymásra. A végén már nem lehetett eldönteni, hogy az épületek szolgálják a hatalmat – vagy maga a hatalom épült bele ezekbe a falakba. És amikor a politikai rendszer 1990-ben összeomlott, ez a tér nem omlott össze vele. Alkalmazkodott. Átalakult. Túlélte. Ez a cikk ennek a láthatatlan rendszernek a története.
A visszaemlékezések és sajtóforrások [02] alapján 1949-ben a párt Központi Vezetősége, a „Trojka” – Rákosi Mátyás, Farkas Mihály és Gerő Ernő – döntése önálló vezetői villák megépítésére irányult, hátterében egymás megfigyelhetősége, „szem előtt tartása” volt. A biztonság nem kifelé volt elsődleges, hanem befelé. A villákat háromméteres fal, szögesdrót, belső kerítések vették körül, az épületek között óvóhely és menekülőjáratok húzódtak. A döntés szerint az őrség is elkülönült: mindhárom vezetőt külön egység védte – nem egyszer elsősorban egymástól. A vendégház itt nem vendégeknek szólt, hanem a hatalom belső egyensúlyának fenntartására szolgált volna, de a döntés már a villák elkészültével módosult: a Központi Vezetőség úgy rendelkezett, hogy az épületek nem állandó lakófunkciót, hanem hétvégi benntartózkodásra, tárgyalásokra és vendéglátásra igényelhetők, minden esetben a Központi Vezetőség előzetes engedélyével. (De a személyi őrzés maradt.) A villákban a tevékenységek jellemzően: a zárt körű étkezések, a vetítések, a kártyázás, beszélgetések. Ezek nem „titkos diplomáciai csúcstalálkozók” voltak, hanem a magyar szűk vezetés és meghívott elvtársai informális együttlétei. A legtöbben nem aludtak ott – a vendégház inkább találkozóhely, mint szállás volt, állami pénzen vagy kedvezményes áron. „Magunknak épült – de állami pénzen”, „Ha már van, használjuk”. Az idők során az igénybe vevők szűk köre fokozatosan bővült, de a használat mindvégig politikai döntésekhez kötődött. Ez az a pont, ahol a magán és az állami elkezd összemosódni.
A vezetők térbeli közelsége ettől kezdve tudatosan értelmezett politikai helyzetté vált: a biztonság nem kifelé volt elsődleges, hanem befelé. A villákat háromméteres fal, szögesdrót és belső kerítések vették körül; az épületek között óvóhelyek és menekülőjáratok húzódtak. Az őrség is elkülönült: mindhárom vezetőt külön egység védte – nem egyszer elsősorban egymástól. A komplexum a Belügyminisztériumon belül a Kormányőrség hatáskörébe tartozott, mind üzemeltetés, védelem, őrzés szempontjából egyaránt. A „vendéglátás” azonban a komplexum védelmében idegen volt. A komplexum funkciói, amiket egy urbex fotón nem lehet látni:
- delegációk elkülönített elhelyezése, mozgása
- tárgyalási helyszínek, és biztosítása
- zárt kommunikáció
- biztonsági zónák rendszere
- védett be- és kijáratok
- szolgálati személyzet rejtett működése
- protokolláris hierarchia térbeli leképezése
A terek ezért tűnhetnek sokszor „furcsának”, „túlméretezettnek” vagy „ridegnek”, Az egyes terek kialakításakor, tervezésekor nem az esztétika volt az elsődleges, hanem állami működési logika.
A hidegháború idején a vendégházak:
- semleges tárgyalási terekként működtek,
- ahol kelet–nyugati, illetve szövetségi egyeztetések zajlottak,
- biztonságos, zárt „titkos” környezetben, sajtó és nyilvánosság nélkül.
Az 1985-ös bővítést követően az igénybevétel és a használat szervezése átkerült a Külügyminisztériumhoz, ekkor nyerte el a komplexum ténylegesen a vendégház funkciót az állami protokoll rendszerében. (Az igénybevétel engedélyezése változatlanul a párt külügyi osztályánál marad.)
A vendégház tehát nem épület, hanem külpolitikai, hatalmi eszköz, mely semleges, védett, tehát nem hotel, nem villa, s nem hivatal, hanem megfigyelhetetlen emberi tevékenység tere, tércsoportja. A 13 ha 2 671 m2 terület, az egymástól jól elkülönülten 4 egymásra nagyon hasonlító, – ma azt mondanánk „típus” – épület nem diplomáciai központ volt, hanem zárt politikai tér, ahova bejárása csak néhány vezetőnek volt.
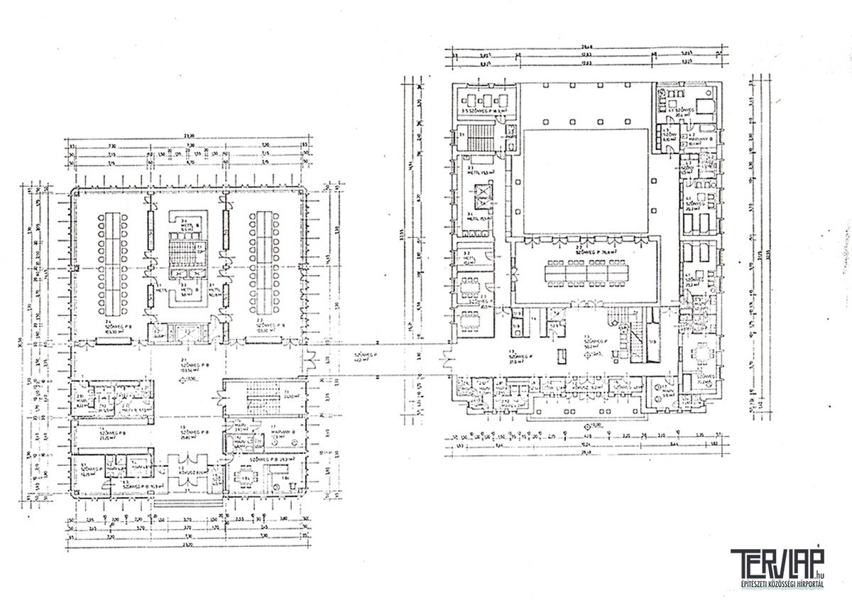
A hetvenes évek közepére a külpolitikai és állami vezetői kapcsolatok intenzitása, valamint a fogadások, tárgyalások és protokolláris események száma olyan mértékben megnövekedett, hogy a meglévő vendégház-kapacitás már nem felelt meg sem a működési, sem a biztonsági követelményeknek. A vendégház-rendszer fejlesztése ekkor vált állami szintű feladattá.
A párt Központi Bizottság [KB] Titkársága 1977. október 24-ei határozatában rendelkezett a kormányvendégházak fejlesztéséről és korszerűsítéséről. Ennek alapján a Honvédelmi Bizottság [HB] 2/290/1978. sz. határozatában intézkedett a Béla király úti kormányvendégház-komplexum bővítéséről. [04] Az épületek terveit Körner József [03] építész készítette.
Telepítés – biztonság, mint tájépítészet. A makett fotók és a légi felvételek alapján látható:
- az épületek egymástól nagy távolságra, ligetes környezetben állnak,
- a közlekedés kontrollált, íves, beláthatatlan,
- a terep és növényzet védelmi elemként működik.
Ez nem csak park, hanem térbe épített biztonsági rendszer. A természet itt nem dísz, hanem védelmi burok.
A villa, amely egyszerre rejt és uralkodik
A Béla király úti villák nem egyszerűen egy domboldalra épültek – bele lettek írva a dombba. A terep itt építészeti eszköz. Az épület egy jelentős alépítményre ül fel, amely egyszerre emeli és rejti: a földszint ünnepélyesen, természetes szinten közelíthető meg, miközben az alagsori világ – konyha, kiszolgálás, gépészet – láthatatlanul, külön szintként működik. Ez a kompozíció tudatos hatalmi döntés: a működés ne látszódjon, csak a jelenlét.
Körner József terve egy korszak építészeti mondata, a kor állítása: a homlokzatok szimmetriája, az épület nyugodt, zárt tömege fegyelmezettségével tekintélyt gyakorol. A domboldalba ültetett, erős alépítmény nem pusztán szerkezeti megoldás: az épület így emelkedik a környezet fölé, miközben rejtve marad mindaz, ami működteti – a kiszolgálás, a technika, a védelem. A látvány a hatalom nyugalma, a működés a hatalom fegyelme.
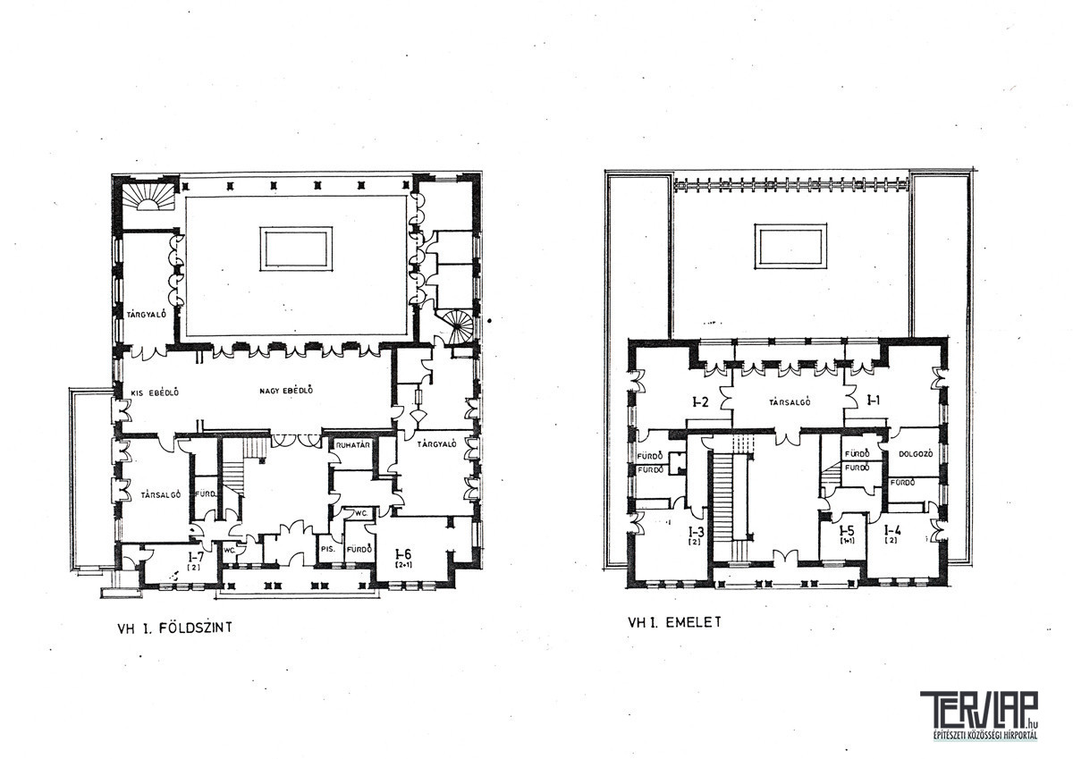
Körner villákat tervez az újkori „arisztokrácia” számára. A villa alapgondolata nem szakít a hagyományos arisztokrata rezidencia-építészet hagyományával, kifejezetten azt követi. A rezidenciák, házak, villák a társadalmi élet színterei voltak: a fogadás, az együttlét, a reprezentáció épületei – bizonyos értelemben nyitott világot képviseltek, ahol a jelenlét, a láthatóság és a rang megmutatása a térhasználat természetes része volt. Körner ehhez a hagyományhoz nyúl vissza, de az 1950-es évek politikai valóságában új jelentést ad neki. A klasszikus rezidencia-kompozíció – tengelyes érkezés, fogadás, tárgyalás, reprezentáció – változatlanul megjelenik: az egymásba fűzött terek rendje világos és olvasható. Az étkező, a központi fogadó-, tárgyalótér és a szalon, valamint az emeletre vezető, teátrális lépcső nemcsak funkcionális elemek, hanem egy tudatos dramaturgia állomásai: a hatalom megérkezik, megmutatkozik, majd eltávolodik. Ettől a tengelytől finoman, de egyértelműen elválik a privát világ. A felső szintek lakosztályai, a visszahúzódás személyes terei már nem részei a társadalmi színjátéknak, mégis ugyanazon a reprezentatív lépcsőn közelíthetők meg – a mozgás maga is a szerep része marad. Ez eddig a hagyományos képlet.
Körner tervén azonban mindezen terek mögött és alatt megjelenik egy másik réteg: az észrevétlen kiszolgálás, a rejtett közlekedés, a védelmi infrastruktúra. Ez az a pont, ahol a hagyományos rezidencia politikai épületté alakul át. A társadalmi reprezentáció tere nem tűnik el, de alá- és köré épül a korszak bizonytalanságára válaszoló biztonsági architektúra. Nem erőd, nem bunker – hanem egy olyan villa, amelynek formájában még ott él a nyitott társadalmi világ emlékezete, de működésében már a hidegháborús korszak zártsága szervezi a teret. A rezidencia továbbra is reprezentatív marad, de már nem nyitott társadalmi tér, hanem védett politikai környezet.
Az épület nem mutatja, hogyan működik – csak azt, hogy működik. Hallgatag tömege, súlyos arányai, visszafogott részletei egyetlen dolgot közölnek: itt rend van, itt hatalom van, itt a tér nem a lakókhoz, hanem a szerephez igazodik. Ez a kompozíciós logika rokona Körner József hasonló korszakban született épületének: klasszikus arányok, nyugodt rend, a tömeg nem hivalkodik, de minden részletében azt közli: itt a hatalom!. A ma is álló II. kerületii szocreál pártház – ma Budapest II. Polgármesteri Hivatala [05]
„Így láttam őket” – élet a vendégházban belülről
A korabeli személyzet – pincérek, kiszolgálók – visszaemlékezéseiből kirajzolódik egy sajátos mindennap: szűk körű étkezések, fegyelmezett kiszolgálás, pontos koreográfia.
A korszak nagy politikai találkozóit kívülről zászlók, díszegyenruhák és hivatalos közlemények jelölték. Belül azonban egy egészen más világ működött. A kormányrezidencia valódi élete a láthatatlan kiszolgálás rendszerében zajlott: szakácsok, biztonságiak, műszakiak és takarítók szinte soha nem kerültek a vendégek látóterébe. Egyetlen szereplő volt, akinek ki kellett lépnie ebből a láthatatlanságból, és közvetlenül találkoznia kellett a vendéggel: a pincér.
A pincér volt az egyetlen civil szereplő, aki a politikai vezetők és a zárt rezidencia világa között közlekedett. Ő vitte be az ételt, ő állt meg az asztalnál, ő hallotta a félmondatokat, látta a hangulatváltozásokat, és tanulta meg, mikor kell eltűnni egy pillanat alatt. Koska János, a rezidencia egykori felszolgálója szerint [06] a vendégeket sosem politikusként, hanem emberként kellett kezelni: „úgy fogtam fel, hogy mindenkinek egy orra és egy szája van.” A szolgálat fegyelmezett volt, a protokoll pontos, de a mindennapokban egészen eltérő karakterek jelentek meg az asztalok körül. Kádár Jánosra egyszerű vendégként emlékezett, aki nem szerette a túlzott formaságot, nem engedte levenni a kabátját, minden alkalommal kezet nyújtott a személyzetnek. Sok cigarettát szívott, a hamutartót folyamatosan cserélni kellett mellette, de körülötte a légkör nyugodt és kiszámítható maradt.
A külföldi vezetők egészen más világot hoztak. Ceaușescu saját pincérrel érkezett, aki egy fémtáskában hordta a vezér személyes ellátmányát. Fidel Castro közvetlen volt, baráti, szívesen beszélgetett a személyzettel, Tokaji aszút külön kérésre mindig biztosítottak neki. Brezsnyev elegáns, lassú mozgású vendégként maradt meg az emlékezetben, kevés szóval, nagyvonalú gesztusokkal. A vendégház így nemcsak tárgyalások helyszíne volt, hanem egy különös színpad, ahol a korszak vezetői minden hatalmuk ellenére emberi szokásokkal, félelmekkel és rigolyákkal jelentek meg. A személyzet számára a történelem nem elvont fogalom volt: napi szolgálat, ahol egyetlen ember – a pincér – láthatóvá vált a hatalom számára.
A nagy bővítés dilemmája (’70–’80-as évek). „A rendszer túlnőtt a villákon”
A kormányzati vendégház-program politikai elindítására 1975-ben került sor a HB döntésével. [07] „A Honvédelmi Bizottság (HB) 7/254/1975 számú határozatával jóváhagyta a kormányvendégházak rekonstrukcióját, [08] új vendégház létesítését. (Szálló épület) Az előtervek 1975 végére elkészültek. Magas költségelőirányzat miatt azonban szükségessé vált az egész fejlesztési koncepció ismételt áttekintése.” A HB jóváhagyta:
- a közösségi helyiségek bővítését,
- új készenléti szálló (D-100 KSZ)
- új hőközpont (D-100 EK = energia központ)
- őrségi épült, és
- a Népköztársaság útja 116. sz. önálló vendégház létesítését.
Állást foglalt a HB abban is, hogy a bővítés, a rekonstrukció 1982 évi befejezéssel szakaszosan kerüljön végrehajtásra úgy, hogy a XIII. kongresszus ideje (1985. március) alatt üzemképes legyen. A fejlesztés eredményeként a az össz-vendégférőhely 28-ról > 70-75 re (mintegy 268 %-al) emelkedjen. Megállapította a HB, hogy a fejlesztés, korszerűsítés 1977-es áron 520-540 MFt [2025-ös reálértéken: ≈ 8–9 billió Ft (8 000–9 000 milliárd Ft) költséggel jár, melyből az V. ötéves tervben (1976-1980) max. 300 MFt biztosítható. A HB 1978-ban jóváhagyta a programot [09] a súlypont pedig fokozatosan a Béla király úti objektumra került át.
A döntésnek megfelelően első ütemben a telepítés és az üzemeltetés, a delegációk biztonsága érdekében a terület kiszolgáló infrastruktúráját kellett megvalósítani. A második, 1980 után az új központi szálló épületet.
Az I. ütem műszaki tartalma:
- a domboldalon a delegációk protokoll előírásoknak is megfelelő gépkocsiforgalom számára telken belüli körforgalom
- megfelelő számú gk. részére elkülönített parkoló
- üzemeltetési, továbbá zaj- és egyéb védelmi szempontból külön épület (EK)
- az energiaellátás
- két oldali elektromos betáplálás,
- aggregátor számára.
- energia kp. és szálló között járható közműalagút
- a 24 órás kiszolgáló személyzet elszállásolására, tartózkodására épület (KSZ)
A Szálló épülete: amikor a működés tervrajzzá válik (1982–1985)
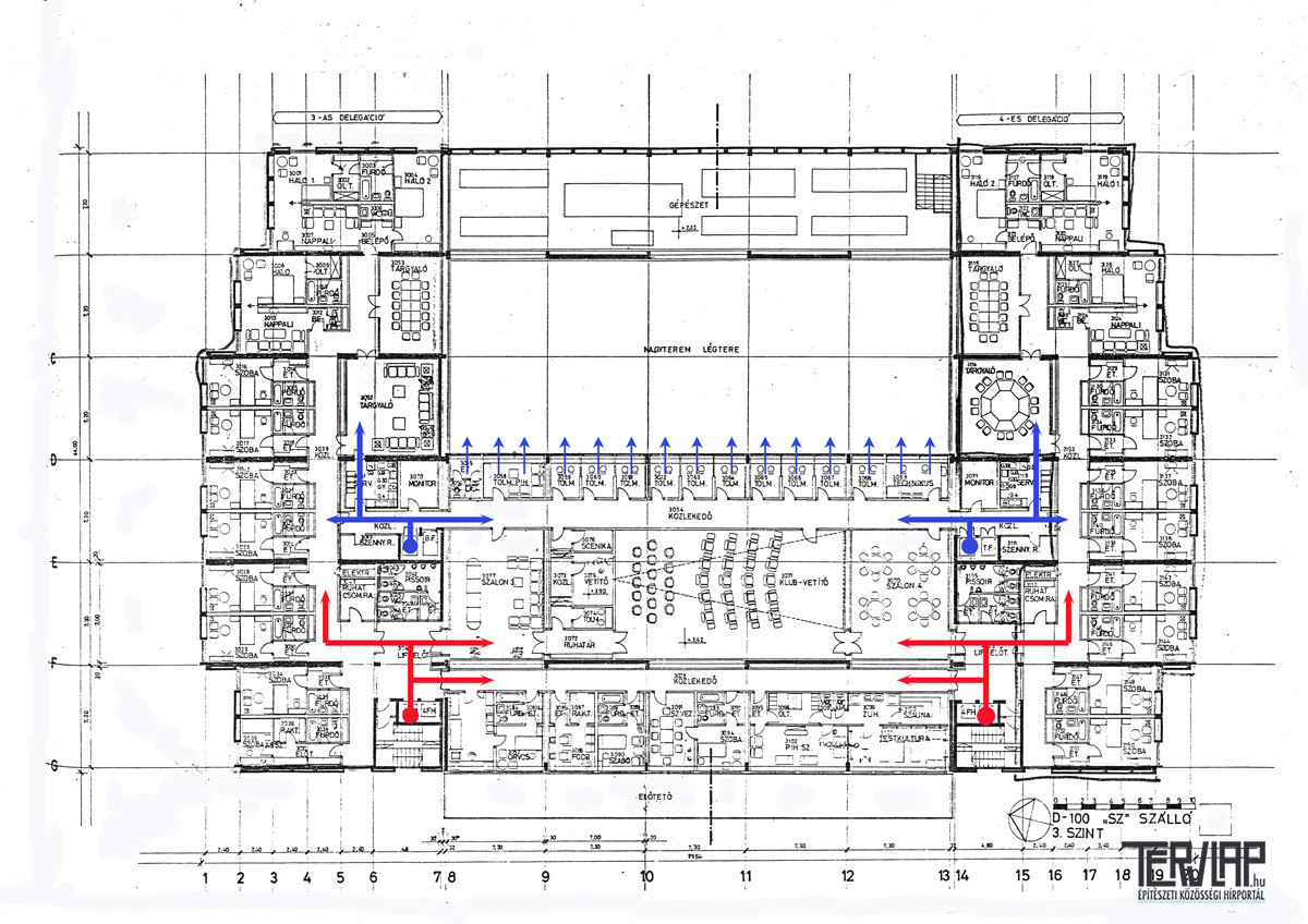
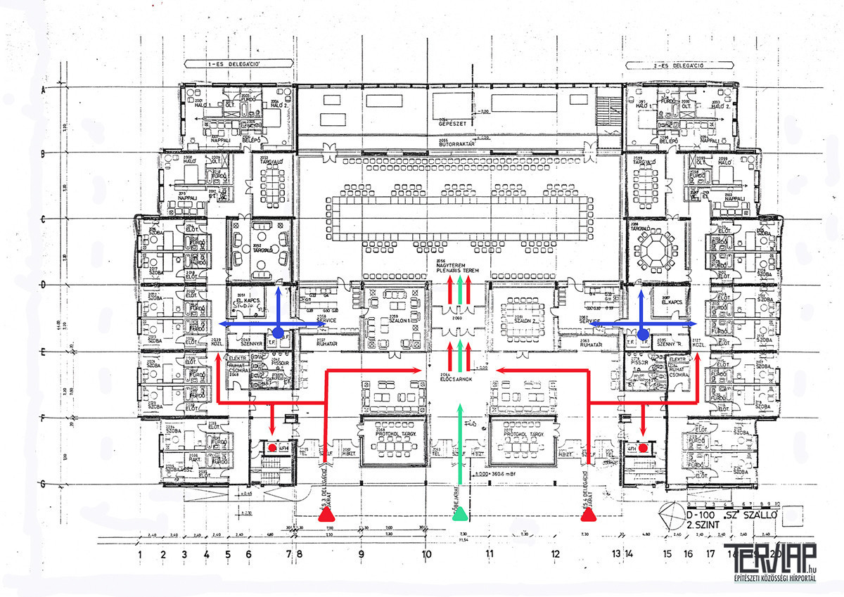
A II. ütemként megvalósult Szálló épülete már nem villa, és nem is a Körner-féle épületek folytatása. Míg a korábbi villák a hatalom látható jelenlétére – érkezésre, reprezentációra, társasági eseményekre – épültek, addig a Szálló egy másik korszak logikáját követi: a hatalom zavartalan, elkülönített működésének terét hozza létre.
A Szálló tervezésekor – a Középülettervező Vállalat (KÖZTI) keretében, Polinszky Tibor építész tervezésében – nem egyetlen lakó vagy vendég igényeiből indultak ki. Az épületet párhuzamosan tevékenykedő szereplők számára kellett kialakítani: egymástól elkülönítve mozgó delegációk, vezetők, személyzet és fegyveres biztonsági szolgálatok számára. A tervezés alapelve ezért nem az együttlét, hanem az elkülönítés volt. Ezeket az elveket az alaprajzokon is jól látható módon sikerült megvalósítani. A rajzokon jelölt „vonalak” nem grafikai segédek, hanem működési rendszerek: külön útvonalakon mozogtak a vendégek, a politikai vezetők, a kiszolgáló személyzet és a biztonsági apparátus. Ezek az útvonalak nem keresztezik egymást. A térszervezés célja az volt, hogy az épületen belül ne jöhessen létre véletlen találkozás, ellenőrizetlen érintkezés, protokollárisan nem kívánt helyzet. Ezek a funkcionális követelmények vezették a tervező ceruzáját. A szállásszinteken delegációként elválasztott közlekedőről nyíló szobák létesültek, a delegációvezetők számára lakosztállyal a szuverén egységekben. A tárgyalóterek – különösen a nagy tanácsterem – ablak nélküliek, lehallgatás ellen védettek voltak, Faraday-elv szerint kialakítva. A nagyteremhez tizenöt nyelvű szinkrontolmács-rendszer kapcsolódott, közvetlen rálátással a tárgyalótérre.
Az érkezési szint alatt kapott helyet az éttermi szint, több részre osztható kialakítással, mögötte a nagykonyha és a kiszolgáló terek. (A konyhát úgy kellett felszerelni, hogy különböző országok eltérő étkezési kultúráját is képes legyen kiszolgálni.) Ugyanezen a szinten biztosították a fegyveres őrség 24 órás jelenlétét helyiségei is. Gépészeti szempontból külön kihívást jelentett a belső, ablak nélküli terek klimatizálása és a konyhaüzem szagelszívása. A szállóépületben kizárólag a légtechnikai berendezések kaptak helyet; minden más energia- és hírközlési kapcsolat a központi energiablokkból, járható alagúton keresztül érkezett.
A kivitelezést a Középületépítő Vállalat végezte, rövid határidővel, magas biztonsági elvárások mellett. A kivitelező a SCAN-Form rendszer [12] alkalmazásához ragaszkodott, amely sok előnnyel jár számára. A tervező számára viszont újabb kihívást: a szerkezet építéséhez jó nagyot ki kellett vágni a hegyből, síkfelületet igényelt. Az érkezési szinthez ezért híd vezetett, amely alatt a kiszolgálás rejtetten, a vendégek elől elzárva történhetett. A kivitelezési idő kényszere miatt a szerkezet jelentős részét előregyártott elemekből terveztem, valósítottuk meg: nemcsak a beton-, hanem a fémszerkezeteket is. Gyári elkészítés után a helyszínen szerelve, beépítve.
A D-100 szálló mint politikai műszer
Fontos különbségtétel: a lehallgatásmentes, ablak nélküli tanácsterek, az acélcsőben vezetett kommunikáció és a Faraday-elvű védelem nem az egész együttesre, hanem kifejezetten az 1982–85 között épült szállóra volt jellemző. Ez az épület már tudatosan egy konkrét politikai helyzetre készült: az 1985-ös pártkongresszus idejére, amikor a nyilvános események mellett szükség volt egy teljesen zárt, technikailag védett tárgyalási térre. Itt a delegációk elkülönítve mozoghattak, a tanácstermek nem kaptak ablakot, a kommunikáció kizárólag ellenőrzött csatornákon zajlott. Ez valóban „építészetté vált hatalmi logika” volt – de csak ebben az időszakban és ebben az épületben.
A Szálló 1985 februárjára elkészült. A következő két évben a magyar állam legfontosabb diplomáciai és politikai eseményeinek egyik központi helyszínévé vált. [13] Az új épület nem pusztán szállásfunkciót látott el, hanem olyan reprezentációs és munkakörnyezetet biztosított, amely alkalmas volt nemzetközi csúcstalálkozók, államközi tárgyalások, ünnepélyes aláírások, sajtóesemények és protokollrendezvények lebonyolítására. Ebben az értelemben a Szálló nem rezidencia, hanem intézmény: a késő szocialista állami működés építészeti lenyomata. A komplexum, a szálló intenzív kihasználtsággal működtek: két év alatt több mint 160 delegációt és mintegy 1500 főt fogadtak, nemzetközi csúcstalálkozók, tanácskozások és protokollrendezvények helyszíneként. A korszak állami értékelése egyértelmű volt: a beruházást indokoltnak és sikeresnek minősítették, a létesítmény pedig betöltötte azt a szerepet, amelyet a döntéshozók a megvalósításkor kitűztek számára.
A nyolcvanas évek végére a rendszer már nemcsak politikailag, hanem térben is túlméretezetté vált.
A Béla király úti komplexum a maga kifinomult biztonsági architektúrájával és egyre növekvő működési költségeivel egy olyan állam képét hordozta, amely már nem tudta pontosan, mire használja azt, amit létrehozott. 1986–87-re világossá vált: a vendégházrendszer eredeti funkciója – a zárt, hidegháborús diplomácia – kifáradóban van. A politikai vezetés még működtette, de már nem fejlesztette. A rendszer tovább élt, de lendülete elfogyott. A tér megmaradt, a korszak kifutott.
Amikor a hatalom, család, állami pénz ismét lakóházzá változtatja a vendégházat
Az 1950-es években a vendégház világa kívülről láthatatlan maradt. A hatalom működését nem jegyzőkönyvek, hanem mindennapi gesztusok, vacsorák, találkozások, szolgálati rutinok szervezték. A korszak egyik pincérének visszaemlékezése szerint a vezetők „nem hivatalnokként, hanem urakként” használták a házat: együtt ettek, ittak, kártyáztak, vitatkoztak – miközben a személyzet láthatatlanul szolgálta ki a politikát. A vendégház egyszerre volt munkahely, társadalmi tér és magánélet – állami pénzen, zárt világban.
Ez a működési minta, meglepő módon, a rendszerváltás után sem tűnt el 1998 és 2002 között.
Az első Orbán-kormány idején (1998-2002) a Béla király úti komplexum továbbra is a Kormányőrség felügyelete alatt működött. Orbán Viktor 1998-ban a kormányrezidenciát választotta ideiglenes lakhelyéül. [14] A döntés már önmagában jelezte: a komplexum ismét a legszűkebb vezetői kör mindennapi működésének része lett. Orbán Viktor miniszterelnök és Áder János, az Országgyűlés elnöke családjukkal együtt a komplexumban éltek, amely ekkor újra a politikai hatalom mindennapi működésének egyik központjává vált. A sajtóbeszámolók szerint a terület kormányzati térként működött: vendégek fogadása, tárgyalások, állami rendezvények, miközben a vezetők magánélete is ugyanebben a környezetben zajlott [14] Orbán Viktor egy 2000-es interjúban [15] maga is elmondta, hogy a költözés gyakorlati okokból történt: a munkavégzés, a biztonság és a szervezési szempontok tették „logikussá”, hogy a kormányfő a komplexumban lakjon [16] Később, már ellenzékben, több alkalommal utalt arra is, hogy az ingatlan fenntartása és működtetése rendkívüli terhet rótt az államra, és szóba került az értékesítés lehetősége is [17] 2002 tavaszán, a kormányváltás után Orbán és Áder kiköltöztek. A komplexum ekkor funkcióválságba került: részben megmaradt az államfői rezidencia szerepe, részben megkezdődtek az újrahasznosításról, átalakításról, sőt az értékesítésről szóló viták. A politikai hatalom és a magánélet korábbi összefonódása azonban ekkor már fizikai nyomot hagyott az épületeken – olyan átalakításokat, infrastruktúrát, biztonsági rendszereket, amelyek fenntartása továbbra is állami költség maradt.
A funkció a kilencvenes évektől gyökeresen átalakult. A vendégházak fokozatosan állami vezetők hivatásos lakhelyeivé váltak. 2002 után már kizárólag az államfő és családja maradt. A 2007-ben épült kiszolgáló épület is ezt a lakófunkciót erősítette. Ez a használat végleg összeegyeztethetetlenné tette a klasszikus vendégházszerepet. A villák „belakása”, a családos élet és a több, egymástól is elkülönülő védelmi szervezet jelenléte miatt. A Szálló épület csak rövid ideig működött eredeti rendeltetése szerint. A MÁÉRT kezdeti tanácskozásai után ez a funkció kifutott.
Mindaz, ami korábban belső tapasztalat volt – a funkció kifáradása, a terek áthangolódása, a vendégház megszűnése –, ma már dokumentálható. Az ’50-es évektől a rendszerváltáson át a 2020-as évekig ugyanaz a minta rajzolódik ki: a Béla király úti vendégház nem vendégekről szólt, hanem a hatalom térbeli megszervezéséről. És amikor ez a funkció megszűnt, az épületek is elveszítették eredeti értelmüket. Ami kívülről politikai hagyományként látszott, belül költségvetési valóság volt. A vendégház története végső soron nemcsak hatalomról, hanem pénzről, átalakításokról, túlköltésekről és veszteségekről szól.
A pénz története – beruházás, túlköltés, értékvesztés
A Béla király úti vendégház-komplexum pénzügyi története nem egyetlen beruházásé, hanem egy évtizedeken át újranyitott állami döntéssorozaté. Az 1977-es kormányhatározat [07] által jóváhagyott költségkeretet az állam a következő évtized során több mint kétszeresére növelt [11], miközben az objektum állami funkciója megszűnt, a jelenlegi árverési ár pedig ennek csak töredékét tükrözi. A HB egy 1981-es határozat [10] már a program első szakaszának lezárását és a további forrásigényt rögzítette. Ezzel a Béla király úti objektum lényegében önálló nagyberuházássá vált, folyamatos felsőszintű politikai és pénzügyi felügyelettel.
A 2025-ben meghirdetett, 28,36 milliárd forintos kikiáltási ár ezért nem tekinthető a történeti beruházás ellenértékének. Ez az ár nem a létrehozott politikai infrastruktúra értékét, hanem kizárólag az ingatlan jelenlegi, funkcióját vesztett állapotát fejezi ki. A kettő között nincs közvetlen megfeleltetés. A pénzügyi mérleg így nem klasszikus nyereség–veszteség kérdése, hanem annak a felismerése, hogy egy állami hatalmi célra létrehozott épített rendszer piaci környezetben értelmezhetetlenné válik.
A beruházás eredetileg egy több elemű vendégház-programként indult, amelynek költségkerete az 1977-es határozat szerint 520–540 millió forint volt. A következő évtized során azonban a program súlypontja fokozatosan a Béla király úti Szálló épületére tolódott át, és a tényleges állami ráfordítás 1989-re 1 257–1 277 millió forintra emelkedett, vagyis közel két és félszeresére nőtt. A túllépések döntő része kifejezetten a Szálló projekthez kapcsolódott, melynek végső bekerülési költsége önmagában meghaladta az eredeti teljes vendégház-program alsó becslését.
A pénzügyi mérleg azonban itt nem zárható le. A komplexum több mint négy évtizeden keresztül zárt, védett, kiemelt állami objektumként működött, ahol a fenntartás, őrzés és reprezentáció költségei folyamatosan újratermelőtek. Ez az érték nem a piacon jött létre, és nem piaci logikával mérhető.
Ezt a helyzetet a jelenlegi állami gyakorlat is visszaigazolja. 2026 januárjában az ingatlan egykori tervezője – a nyilvános árverés meghirdetése után – hivatalos megkereséssel fordult a Magyar Nemzeti Vagyonkezelő Zrt.-hez, kérve az épület megtekintésének és fényképes dokumentálásának lehetőségét. A válasz szerint [18] erre nincs mód: a megtekintés joga kizárólag az árverésen biztosítékot fizető licitálókat illeti meg. Az állam tehát még az értékesítés pillanatában sem közönséges ingatlanként kezeli az objektumot, hanem továbbra is sajátos státuszú, korlátozott hozzáférésű „ingatlancsoportként”.
Egy zárt, őrzött világ öröksége – és ami most megnyílik
A Béla király úti vendégház-komplexum 1949 óta több mint hetven éven át zárt, őrzött, védett területként működött. A 13 hektár és 2700 m² területű park és a rajta álló, épületegyüttes nemcsak politikai és építészeti történetet hordoz, hanem egy olyan természeti örökséget is, amely éppen a zártság és a folyamatos fenntartás miatt maradhatott fenn kivételes épségben.
A Duna–Ipoly Nemzeti Park Igazgatóság felmérése (lásd: Árverési Hirdetmény) szerint az Ingatlan területén több tucat idős, őshonos faegyed alkot ma is összefüggő élőhelyet: száz évnél idősebb fehér nyarak, csertölgy-csoportok, molyhos tölgyek, idős juharok, hársak, nagyméretű bükk holtfa, denevér- és madárélőhelyek. E fák nem csupán botanikai ritkaságok: ökológiai rendszerként működnek, amelynek védelmét részletes természetvédelmi előírások rögzítik – a fakivágás időbeli korlátozásától az odvas fák kötelező megőrzéséig, a denevérek, madarak és kisemlősök élőhelyeinek védelméig.
Ez a táj nem a tervezőasztalon született: a politikai hatalom infrastruktúrája évtizedeken át megóvta attól, amit a városi terjeszkedés másutt elvégzett. A park így vált akaratlanul is a 20–21. századi Budapest egyik legnagyobb összefüggő, háborítatlan zöld örökségévé. Most azonban a terület megnyílik. A kérdés többé nem csupán ingatlan- vagy beruházási ügy. A kérdés az: képes-e a nyitottság megőrizni azt az értéket, amelyet a zártság hozott létre?
A hirdetményben szereplő jövőbeli hasznosítási lehetőségek – különösen a lakófunkció és az ehhez szükséges folyamatos gépjármű-forgalom – óhatatlanul más működési logikát kényszerítenek rá erre a térre, mint amely több mint hetven éven át fennmaradását biztosította. Az a csendes, korlátozott használat, amely a politikai korszakok során – akaratlanul is – a természeti értékek védelmét szolgálta, a nyitott, mindennapi használat mellett már nem magától értetődő módon őrizhető meg.
Epilógus
Az árveréssel nem egy épület története zárul le, hanem egy korszaké – és az a kérdés marad nyitva, hogy a megőrzött értékekből mi marad meg a nyitottság után. A Béla király úti vendégház komplexum nem egyszerű építési beruházás volt, hanem több mint egy évtizeden átívelő, stratégiai jelentőségű állami projekt, amelynek politikai, külügyi, protokolláris és nemzetbiztonsági súlya messze meghaladta az ingatlanpiaci érték logikáját. A 2025-ös árverés így nem pusztán egy ingatlan értékesítése, hanem egy történetileg és pénzügyileg rendkívüli állami beruházás utóélete.
A Béla király úti kormányvendégház-komplexum nem pusztán építészeti vagy ingatlanfejlesztési projektként született meg, hanem egy sajátos történelmi korszak diplomáciai infrastruktúrájaként: a hidegháború világában. A kelet–nyugati blokkhatár mentén működő magyar külpolitika számára a hetvenes–nyolcvanas években létfontosságú volt, hogy rendelkezzen diszkrét, magas biztonságú, elkülönített tárgyalási helyszínekkel, A Béla király úti komplexum ennek a világnak a fizikai lenyomata: olyan térszervezésű infrastruktúra, amely egyszerre volt alkalmas több delegáció elkülönített elhelyezésére, párhuzamos tárgyalások lebonyolítására és az informális politikai kommunikáció minden szintjére. A 21. század geopolitikai rendje ugyanakkor gyökeresen átalakult. A korábbi kétpólusú világrendszert egy többpólusú, több szintű és több szereplős diplomáciai tér váltotta fel. Ma nem csupán államok tárgyalnak egymással. Ebben a megváltozott világban egy olyan infrastruktúra, mint a Béla király úti komplexum, nem veszítette el funkcióját, hanem új értelmet kapott. A különbség abban áll, hogy ma mindehhez új működtetési modell szükséges. A kizárólag állami fenntartású működés rendkívül költséges, miközben a komplexum alkalmas lenne nemzetközi fórumok, stratégiai vállalati egyeztetések, globális együttműködések, kulturális és tudományos csúcstalálkozók helyszíneként is. Mindez olyan vegyes finanszírozási konstrukciók irányába mutat, ahol állami keretek mellett magántőke és nemzetközi partnerségek is szerepet kapnának – még ha ez a modell a hagyományos állami gondolkodásban idegenül is hat.
A mostani árverés nem pusztán egy ingatlan sorsáról dönt, hanem arról is, hogy Magyarország lemond-e egy történetileg kialakult, ma is működőképes diplomáciai eszközről, amely a hidegháború árnyékában született, de a 21. század összetett, sokszereplős világában is kivételesen értékes lehetne
Jegyzetek
- [01] 1949 és 1953 közötti időszak Magyarországon a szűkebb értelembe vett „Rákosi-korszak”. A korszak nevét a sztálinista rendszerű totális diktatúrát kiépítő Rákosi Mátyás után kapta, aki ekkor alapjaiban formálta saját ízlésére az országot; 1949-ben szovjet mintára új alkotmányt és új államcímert is készíttetett, illetve megkezdődött a rendőrállam kiépítése és a totális terror korszaka. A rendszerre mind párton belül, mind országosan a féktelen terror volt a jellemző. Az időszakot a ÁVO, illetve a belőle önállósított ÁVH kegyetlenkedései, koncepciós perek, az „osztályidegen elemek” gulag-szerű táborokba deportálása, kivégzése, illetve a párton belüli ellenzék pusztítása jellemezte. Ez Rákosi és Sztálin mesterségesen felépített és fenntartott személyi kultuszával, erőltetett kolhozosítással és a nehéz-, valamint a hadiipar teljességgel indokolatlan és gazdaságtalan fejlesztésével párosult, ami együttesen rövid úton általános nyomorba taszította a lakosságot.
- [02] Vasárnapi Hírek Fókusz 2015. április 11. p.13
- [03] „A kormányrezidencia régi épületeit az a Körner József tervezte, akinek a neve egyébként a munkásmozgalmi panteonnál szerepel a könyvben (s jegyezzük meg, az ő munkája a ma is álló II. kerületi szocreál pártház – ma önkormányzat).” Felkai András: Könyvszemle „Budapest noir” Magyar Tudomány • 2012/12 ; p. 1531 I Körner József (Bp., 1907. – Bp., 1971.) építész, a CIAM magyar csoportjának tagja, később a szocialista realizmus képviselője, Kossuth-díjas (1959).
- [04] MNL OL 1986 szeptember 29.” (288.f.7/756.ő. e) 2. napirendi pont 5.8; 45-50 p
- [05] Körner József munkája a ma is álló II. kerületi szocreál pártház – ma önkormányzat, Budapest II. Kerület Polgármesteri Hivatal Budapest II. Mechwart liget / Felkai András: Könyvszemle „Budapest noir” Magyar Tudomány • 2012/12 ; p. 1531
- [06] BORS, 2024. november 23., SZOMBAT p.4
- [07] Minisztertanács ülés, 1977. december 2 HU-MNL-OL-XIX-A-83-a-175-581 1977.12.02
- [08] Vendégházak: N-116 = Népköztársaság útja 116 (Andrássy út 116); D-100 = Bélakirály úti vendégházak: VH-1 – VH-4.
- [09] MNL HL, HU-HL VIII.2., 8. doboz, HB 2/290/1978.) (1978.04.21)
- [10] HB 4/320/1981. határozat „A Béla király úti kormányvendégház komplexum fejlesztéséről” HU-HL VIII. 2. 9. doboz (1981. január 29)
- [11] HU-HL VIII. 2. 10. doboz (1984. 05.24); HU-HL VIII. 2. HB 8/1988. HU-MNL-OL-XIX-A-98 HB9-11/386/1988
- [12] A dán "skandináv forma" (Scan-Form) nagytáblás síkzsaluzati rendszer egy innovatív építési technológia, amelyet elsősorban a gyors és hatékony betonozási folyamatokhoz fejlesztettek ki.
- [13] KB Titkárság jelentése, 1987. március „A Béla király úti kormányvendégház új épülete korszerű és kulturált… több célú lehetőségei olyan munkakörülményeket biztosítottak… amelyek a nemzetközi igényeknek is megfeleltek… 1985-ben 74 delegáció (648 fő), 1986-ban 87 delegáció (818 fő)… az új épületben 12 nemzetközi tanácskozást tartottak. ... 1985-höz viszonyítva 18 százalékkal, a vendéglátásban résztvevők létszáma 21 százalékkal volt magasabb. ... Az elmúlt két évben az új épületben 12 nemzetközi tanácskozást tartottak, A tapasztalatok azt bizonyítják, hogy az új szálló megépítése indokolt volt… A kormányvendégház hasznosítása megfelelően alakult.” (MSZMP KB PGO, a KO és BM együttes jelentése a KB Titkárságának) I MNL OL 1987. március 2+(288. f. 7/770. ö. e. p- 5-6; p31-34)
- [14] Vasárnapi Hírek, 2000. november 19. p. 12; Nógrád Megyei Hírlap, 1998, október 4.
- [15] Népszava, 2008. szeptember 12 – Csík Rita p. 11.
- [16] Vasárnapi Hírek, 2000
- [17] Népszava / Belföld 2008. szeptember 13. p. 4.
- [18] Magyar Nemzeti Vagyonkezelő Zrt., Vagyonhasznosítási Igazgatóság, dr. Fülöp-Kósa Csilla hasznosítási jogi menedzser levele, 2026. január 9.: „Az MNV Zrt. a Magyar Állam nevében eljárva jelenleg a tárgyi ingatlancsoport további hasznosítása ügyében jár el, így nem tudja biztosítani Önnek az Ingatlan megtekintését. A lehetőség kizárólag az elektronikus árverésen azon licitálóknak biztosított, akik az árverési biztosíték összegét megfizették.”




2026. február 12., Millennium Háza 