A hely, ahol Walter Gropius, Breuer Marcel és Moholy-Nagy László tesztelték a kollektív életforma kínálta lehetőségek gazdag tárházát, és osztották meg forradalmi gondolataikat.
A londoni Hampstead városrész egyik csendes mellékutcájában áll az Isokon épület, amely a brit modernizmus egyik legkorábbi és legjelentősebb példája. A ma is feltűnően letisztult, fehérre vakolt, hosszúkás formájú társasház nem csupán építészeti kuriózum: története szorosan összefonódik a Bauhaus mozgalom menekült művészeivel, és a két világháború közötti avantgárd szellemiséggel.
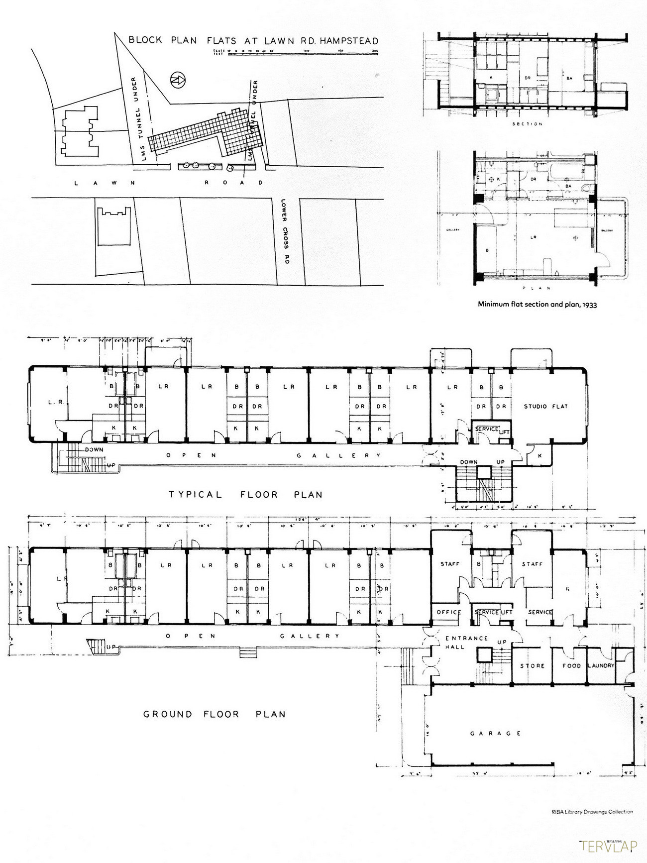
Az épület megálmodói, Jack és Molly Pritchard a harmincas évek elején a korszak új, kollektív lakhatási elképzeléseit szerették volna megvalósítani. A „minimum dwelling” elve – a praktikus, kis alapterületű, de jól szervezett élettér – a kontinensen már elterjedt, ám Nagy-Britanniában úttörőnek számított. A tervezési programot Molly Pritchard állította össze, és meghatározta, milyen emberek igényeit kell kielégíteni: fiatal, hivatásukat gyakorló férfiakét és nőkét, akik kevés holmival rendelkeznek. Az elképzelés az volt, hogy a hangsúly az élet élvezetén legyen, ne pedig a házimunka terhein. A kisméretű, de jól felszerelt lakások olyan szolgáltatásokat is nyújtottak, mint a takarítás és az ágyazás, az alsó szinten pedig étkezést is biztosítottak. A tervezéssel a kanadai származású, korábban Japánban is élt, Angliában dolgozó építészt, Wells Coatest bízták meg. 1934-re készült el a ma is ismert, hajóformát idéző, négyszintes ház, amely azonnal a brit modern építészet jelképe lett.
A telken a hosszanti irányú elhelyezés lehetővé tette, hogy minden lakás bőséges természetes fényt és kilátást kapjon a Hampstead Heath zöldjére. A vasbeton vázas szerkezetet hófehér, sima felületek, sávos erkélyek és a hajót idéző, lekerekített lépcsőház teszik dinamikussá. A ház eredetileg 24 kis garzonlakást és néhány nagyobb penthouse-t foglalt magában, és mindegyiket a hatékony helykihasználás és a modern kényelem – beépített bútorok, központi fűtés, ételszállító lift – jellemezte. A lakások belső tereiben amit csak lehetett, rétegelt lemezből építettek meg, az önmagában is kiváló stabilitást nyújtó anyag lehetőséget teremtett a belső falak és bútorok egyesítésére, ezzel némi többlet teret nyerve a minimál alapterületű lakásokban.
Az Isokon apartmanjai elsősorban egyedülálló, városi értelmiségiek számára készültek. A kompakt méret ellenére minden részlet a funkcionalitást szolgálta: a konyhák aprók, de teljesen felszereltek, a nappalikban beépített tárolók és lehajtható asztalok teremtettek rugalmas életteret. A lakók számára közös mosókonyha és ételkiszolgáló rendszer is működött, a kollektív életformát hirdetve.
Az épületet különleges kapcsolat fűzi a Bauhaus mozgalom legjelentősebb magyar származású alkotóihoz. Az 1930-as évek politikai fordulatai sok modernista művészt és tervezőt kényszerítettek emigrációba Németországból, a nácizmus előretörése elől. Az Isokon ennek köszönhetően hamar a Bauhaus menedékhelyévé vált. A lakások nagy sikert arattak a nagyközönség és az építészeti sajtó körében, és Walter Gropius, a Bauhaus alapítója még abban az évben, október 18-án költözött be, egyben ő lett az Isokon Furniture Company tervezési vezetője is. Hamarosan követte őt Moholy-Nagy László és Breuer Marcel is. Az épület pezsgő szellemi központtá vált, ahol a lakók művészeti és építészeti vitákat, előadásokat szerveztek.
Az épület egykori lakói között volt Agatha Christie író, Adrian Stokes művészetkritikus, Egon Riss bútortervező, Arthur Korn építész, James Stirling építész, valamint Kenneth és Diana Rowntree képzőművészek.
Az épület földszintjén működött az Isobar, amely Breuer belsőépítészeti tervei alapján készült. Ez a bár a londoni avantgárd egyik találkozóhelyévé vált, ahol művészek, írók, építészek cseréltek eszmét. A hely sok érdekes embert vonzott, köztük Ben Nicholsont, Barbara Hepworth-t, Henry Moore-t, Naum Gabót, a brit modernista képzőművészet kiemelkedő személyiségeit, és Serge Chermayeff építészt. A bár nem maradt fenn, helyén később lakásokat alakítottak ki.
Ma kissé bizarrnak ható adalék az épület történetéhez, hogy az 1930-as évek végén, a kor politikai zűrzavarában a lakók közül legalább öten a szovjet hírszerzésnek dolgoztak. Egyikük, Edith Tudor-Hart fotográfus kiállítása, Through a Bauhaus Lens (A Bauhaus lencséjén keresztül) jelenleg megtekinthető a földszinti kiállítótérben.
Breuer nemcsak lakóként, hanem tervezőként is nyomot hagyott az Isokon márkában. A Pritchard házaspár felkérésére ő tervezte a lakások egy részének beépített bútorait, és a mára ikonikussá vált, rétegelt lemezből hajlított Isokon Long Chair-t, amely a modern bútortervezés mérföldköve.
A rétegelt lemez hagyományát folytatva nemrégiben a brit Foster + Partners Industrial Design stúdió az Isokon bútormárkával együttműködve alkotta meg a Join nevű rétegeltlemez-bútorkollekciót, amelyet az idei London Design Festival keretében mutattak be. A kollekció egy sor asztalt, egy lounge széket és egy lábtartót tartalmaz, mindegyik rétegelt lemezből készül – ebből az anyagból az Isokon különösen nagy szakértelemmel dolgozik. A lounge szék kialakítását hajtogatási technikák ihlették, és furnérozott fából készült. Az anyagot először „nadrág” formát idéző mintára vágták, majd préselték, hogy kialakuljon a szék ergonomikus formája.
Az épület a második világháború után hanyatlani kezdett, majd az 1970-es évekre erősen leromlott állapotba került. 1972-ben az épületet eladták a Camden önkormányzatának, majd később a Notting Hill Housing Trust kezelésébe került. A 2000-es évek elején azonban a Notting Hill Housing cég és az English Heritage közreműködésével teljes körű felújítás valósult meg. Ma az Isokon ismét lakóházként működik, az egykori garázs helyén kialakított, ingyenesen látogatható kiállítótere – az Isokon Gallery – pedig bemutatja a ház és a benne élt Bauhaus-mesterek történetét.
Az épületet 1974. május 14-én I. fokozatú műemlékké nyilvánították. Az I. fokozat a legmagasabb besorolási kategória, amelyet a kiemelkedő építészeti értéket képviselő épületek kaphatnak meg.
Az Isokon nem csupán épület, hanem a modern európai gondolkodás brit otthona. Letisztult formavilága, a kollektív lakhatás kísérlete, és a Bauhaus mestereinek jelenléte révén máig élő emlékműve annak, miként találkozhat a radikális építészet és a társadalmi újítás
Videó:
Képek: Sebes Péter




2026. február 12., Millennium Háza 